WDYQ液體電阻起動器
WDYQ系列液體電阻起動器產品概述WDYQ系列液體電阻起動器是在繞線電動機的轉子回路中串入三相星形聯接的液體電阻,液阻隨電動機的起動而自動接入,阻值在預定的時間內無級減小,接近于零時自動切除,從而使電動機在接近額定電流和最大轉矩的情況下無沖擊平滑起動……
產品詳情
WDYQ系列液體電阻起動器
產品概述
WDYQ系列液體電阻起動器是在繞線電動機的轉子回路中串入三相星形聯接的液體電阻,液阻隨電動機的起動而自動接入,阻值在預定的時間內無級減小,接近于零時自動切除,從而使電動機在接近額定電流和最大轉矩的情況下無沖擊平滑起動,起動過程對電網無沖擊干擾,無諧波污染。適用于三相交流0.4kV、0.66kV、3kV、6kV、10kV,額定功率到45—10000kW的繞線式異步電動機的重載平滑軟起動。
性能特點
起動電流小且基本恒定,對電網無沖擊;
起動電流不大于額定電流的1.3倍,可降低變壓器的容量要求;
可低電壓起動,電網電壓能保證電動機正常運行,就能順利起動;
可連續起動5~10次;
平滑起動,機械應力沖擊小,有效保護電動機和傳動機械;
特別適用于重載起動;
結構簡單、安裝維護方便,可靠性高。
產品型號

使用環境
環境溫度:-10℃ ~ 40℃;
相對濕度:<85%,不凝露;
海拔高度:<2000m,2000m以上須特殊設計;
安裝地點:垂直傾斜度不超過5°,無劇烈震動,無腐蝕金屬和破壞絕緣的氣體與塵埃。
執行標準
GB7251.1-2005 《低壓成套開關設備和控制設備》
技術規格
0.4kV/6kV/10kV繞線電機液體電阻起動裝置(具體尺寸以訂貨為準)
型 號 |
適配功率(kW) |
外形尺寸(mm) |
備 注 |
||
W |
D |
H |
|||
WDYQ-0.4/□ |
≤ 400 |
800 |
800 |
2000 |
一體式 |
WDYQ- 0.6/□ |
≤ 600 |
800 |
800 |
2000 |
一體式 |
WDYQ-1/□ |
≤1000 |
1000 |
900 |
2000 |
一體式 |
WDYQ-2/□ |
≤2000 |
1200 |
900 |
2000 |
一體式 |
WDYQ-3/□ |
≤3000 |
1300 |
1200 |
2200 |
一體式 |
WDYQ-4/□ |
≤4000 |
1400 |
1200 |
2200 |
一體式 |
WDYQ-5/□ |
≤5000 |
1500 |
1200 |
2200 |
一體式 |
WDYQ- □/□ |
>5000 |
特殊設計 |
|
||
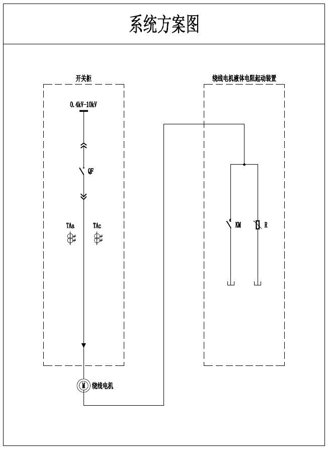
產品方案

訂貨須知
訂貨時須提供電機型號、額定功率、額定定子電壓、額定定子電流、額定轉子電壓、額定轉子電流、負載類型等信息。
地址:襄陽市高新開發區關羽路99號 (湖北鐵能電氣集團院內)
手機官網

關于我們
產品中心
工程案例
聯系我們